Home
Services
Projects
Contact
More
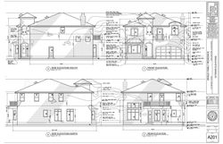
SINGLE FAMILY HOUSE, BEVERLY PLACE HIGHLAND PARK, ILLINOIS
New 3000 sf brick and frame house in Chicago north suburb of Highland Park.